Exposição Wohnungsbau
Sustentabilidade, eficiência econômica e questões sociais na produção de projetos do escritório para habitação social
Bielefeld - Alemanha
Galeria Kunstverein Bielefeld 10 de maio - 13 de julho/2025
Curadoria: Andreas Wannenmacher e Catherine M von Uhlendorff
Fotografia: José Hevia
Bielefeld - Alemanha
Galeria Kunstverein Bielefeld 10 de maio - 13 de julho/2025
Curadoria: Andreas Wannenmacher e Catherine M von Uhlendorff
Fotografia: José Hevia
A exposição Housing, apresentada em Kunstverein Bielefeld, explora a abordagem inovadora do escritório Peris+Toral Arquitectes (Barcelona), reconhecido por integrar sustentabilidade, eficiência econômica e questões sociais em projetos habitacionais contemporâneos. A mostra destaca quatro projetos emblemáticos sobre o Habitar no mundo contemporâneo: Modulus Matrix (85 unidades habitacionais), com tipologia excêntrica estruturada em módulos de madeira; Raw Rooms (43 unidades), que investiga as propriedades físicas da terra enquanto elemento construtivo e caixilhos em madeira km0; Living in Lime, conjunto de 42 unidades em Mallorca que harmoniza a construção vertical com o contexto histórico local através de elementos construtivos e paisagísticos; e Greenh@use, edifício de nove andares que integra 140 unidades para diferentes grupos sob uma mesma cobertura.
A concepção expográfica buscou traduzir a clareza estrutural, tectônica e a precisão estética dos projetos. Através de fotografias e da exposição de desenhos técnicos foi criado um ambiente que não apenas exibe, mas vivencia os conceitos dos arquitetos, guiando o visitante por uma narrativa sobre inovação habitacional.
O principal desafio foi traduzir em uma linguagem expositiva a complexidade e a sensibilidade de cada projeto, respeitando as características da galeria e também proporcionando uma experiência imersiva ao público. A colaboração com o curador
Andreas Wannenmacher e o fotógrafo José Hevia foi fundamental para garantir que a exposição não apenas informasse, mas também inspirasse e provocasse reflexões sobre o futuro da habitação.
Andreas Wannenmacher e o fotógrafo José Hevia foi fundamental para garantir que a exposição não apenas informasse, mas também inspirasse e provocasse reflexões sobre o futuro da habitação.
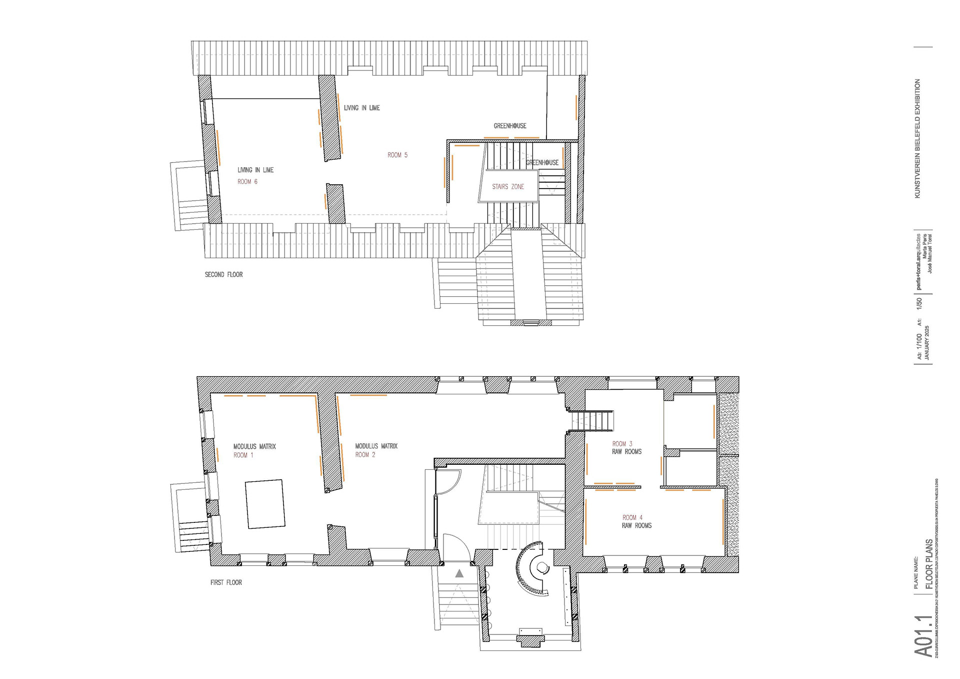
desenhos técnicos da expografia:
arranjo de desenhos de apresentação do projeto "Modulus Matrix", disposto sobre mesa:
outras produções gráficas e elaborações de desenhos para publicação, conferências e pesquisa: